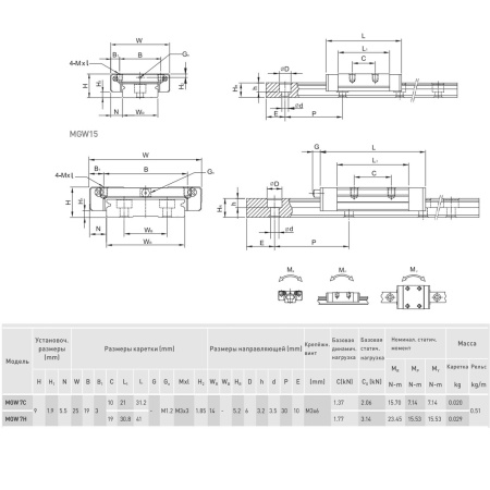
Каретка (также могут использоваться названия "блок системы линейного перемещения", "опорный блок", "направляющий блок", "танкетка", "линейный подшипник", "опорный подшипник" и прочие) HIWIN MGW7CZ0HM имеет следующие параметры:
MG - серия миниатюрных линейных направляющих;
W - широкий тип каретки;
7 - типоразмер (данный параметр определяет размерную совместимость каретки и рельса с учетом серии и требуемой точности);
C - стандартная длина - один из параметров, определяющих величину нагрузки (базовая динамическая нагрузка C - 1,37 kN, базовая статическая нагрузка С0 - 2,06 kN);
Z0 - очень легкий предварительный натяг (без зазора);
H - высокий класс точности (допустимые отклонения по высоте ± 0,02 мм, допустимые отклонения по ширине ± 0,025 мм, среднее отклонение по высоте – 0,015 мм, среднее отклонение по ширине – 0,02 мм);
M - исполнение из нержавеющей стали.
Конструкция линейных направляющих MG-серии
- каретка (блок)
- заглушка крепежного отверстия рельсовой направляющей
- шарики
- нижнее уплотнение
- фиксатор
- рельс
- смазочный ниппель
- торцевое уплотнение (двойное уплотнение и скребок)
- торцевая заглушка
Особенностями серии MG являются небольшой размер и вес, что определяет её использование в миниатюрном оборудовании. Надежность и долговечность таких систем линейных перемещений определяется и тем, что каретки изготовлены из нержавеющей стали. Готический профиль поверхности качения способствует выдерживанию нагрузок во всех направлениях, отличается жёсткостью и точностью. Благодаря более широкой форме рельса у каретки улучшено восприятие моментов нагрузки. Наличие фиксатора предотвращает выпадение шариков при снятии блока с направляющей. Данный тип линейных направляющих является взаимозаменяемым, то есть любые каретки и любые рельсы серии могут использоваться вместе, сохраняя точность и размерность.
Области применения: полупроводниковая промышленность, монтаж печатных плат, медицинское оборудование, робототехника, измерительные приборы, автоматизация офисной деятельности и другие сферы, где необходимы миниатюрные направляющие.
Гарантийный срок - 12 месяцев с момента покупки при обязательном соблюдения технологии монтажа, режима и условий эксплуатации, предусмотренных компанией HIWIN.
|
Бренд
|
HIWIN |
|
Серия
|
MG (миниатюрная) |
|
Тип каретки
|
широкий |
|
Типоразмер
|
7 |
|
Нагрузка
|
стандартная |
|
Вариант крепления
|
сверху |
|
Предварительный натяг
|
очень легкий |
|
Класс точности
|
высокий |
|
Длина, мм
|
31,2 |
|
Высота, мм
|
7,1 |
|
Ширина, мм
|
25 |
|
Вес, кг
|
0.02 |